TIPOLOGIA
LOCALIZAÇÃO
Moradia T3 Malveira
ID Propriedade:
Descrição
MORADIA T3 em Construção – Malveira
✅✅VISITAS A PARTIR DE 25 DE ABRIL 2026✅ ✅
Imagine viver numa casa onde cada detalhe foi pensado para proporcionar conforto, funcionalidade e bem-estar.
Esta moradia de linhas modernas, atualmente em construção, com previsão
de conclusão em setembro de 2026, está situada na Malveira, uma vila que combina tranquilidade, acessibilidade e qualidade de vida.
Um projeto contemporâneo, ideal para quem procura um lar equilibrado, onde a vida acontece de forma simples e confortável.
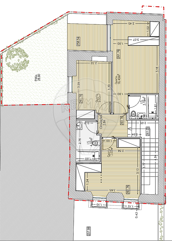
✅Piso 0 – Zona Social
O piso térreo foi concebido para o dia a dia, privilegiando a fluidez dos espaços e a ligação ao exterior:
- Sala de estar com 14 m², acolhedora e luminosa
- Cozinha e sala de refeições em open space com 22 m², funcional e convidativa
- WC completo com 3 m²
- Hall de entrada com 3,91 m²
- Lavandaria com 6,94 m²
- Arrecadação com 2,83 m²
- Terraço com 28,90 m², com churrasqueira — o espaço ideal para convívios, refeições ao ar livre e momentos de descontração
✅Piso 1 – Zona Privada
O piso superior é dedicado ao descanso e à privacidade, oferecendo ambientes tranquilos:
- Suite com closet com 16,40 m², pensada para o máximo conforto
- WC da suite com 3,19 m²
- Quarto com 9 m², com roupeiro embutido
- Quarto com 13,07 m², também com roupeiro embutido
- Hall de circulação com 2,84 m²
- WC completo com 4,16 m², de apoio aos quartos
Este piso foi desenhado para proporcionar uma vivência serena, com uma clara separação entre a zona social e a zona privada — um verdadeiro refúgio ao final do dia.
✅Conforto, Eficiência e Acabamentos Modernos
A moradia conta com soluções atuais que asseguram conforto térmico, eficiência energética e funcionalidade:
- Caixilharia em alumínio oscilo batente
- Vidro duplo com rutura térmica
- Estores elétricos exteriores
- Pavimento flutuante
- Cozinha totalmente equipada, com:
- Placa de indução
- Forno elétrico
- Exaustor
- Máquina de lavar louça
- Frigorífico
- WC’s completos
- Pré-instalação de ar condicionado
- Painel solar térmico
✅Malveira – Viver com Qualidade
A Malveira é uma vila moderna e bem estruturada, muito procurada pelo seu ambiente familiar e excelente localização:
- Comércio local diversificado e grandes superfícies comerciais
- Restaurantes, cafés e ginásios, serviços essenciais
- Jardins de infância, escolas do 1.º ciclo e Escola Básica e Secundária da Malveira
- Escola da Condução
- Centro de Saúde da Malveira
- Posto da GNR
- Bombeiros
✅Lazer e Envolvente
A zona oferece espaços verdes, áreas de lazer e locais ideais para caminhadas e prática de desporto.
A proximidade às praias da zona Oeste e às áreas naturais do concelho de Mafra
reforça a qualidade de vida desta localização.
✅Acessibilidades e Mobilidade
Com excelentes acessos rodoviários através da A21 e A8, permite deslocações rápidas e cómodas:
- Mafra: cerca de 10 minutos
- Torres Vedras: cerca de 20 minutos
- Loures: cerca de 20 minutos
- Lisboa: aproximadamente 30 minutos
- Estação ferroviária e transportes públicos com ligação direta a Lisboa / Torres Vedras com frequência
Um Lar Pensado Para o Presente e Para o Futuro
Mais do que uma moradia, este é um projeto pensado para criar conforto, memórias e equilíbrio.
Uma casa moderna, numa vila completa, onde é possível viver com tranquilidade
sem abdicar da centralidade.
Venha conhecer. Marque a sua visita!
Especificações
Ano de Construção:
Nº de Quartos:
Nº de Casas de Banho:
Certificado Energético:
Área Bruta:
150 m2
Área Útil:
130 m2
Área Lote:
117 m2
Localização
Quero ser Contactado!
Visualizações
Simulador de Crédito
10%Os valores apresentados são meramente indicativos, não vinculativos, e podem variar consoante as condições reais de crédito, sujeitas à aprovação da instituição financeira. A consulta a um Intermediário de Crédito é recomendada para uma análise personalizada.
Imóveis Semelhantes
QUARTOS
3
WC
2
ÁREA BRUTA
96
ÁREA ÚTIL
87
CERT. ENERGÉTICO
E
QUARTOS
4
WC
3
ÁREA BRUTA
174.26
ÁREA ÚTIL
168
CERT. ENERGÉTICO
D
QUARTOS
3
WC
3
ÁREA BRUTA
332
ÁREA ÚTIL
140
CERT. ENERGÉTICO
A
QUARTOS
4
WC
4
ÁREA BRUTA
171.5
ÁREA ÚTIL
165
CERT. ENERGÉTICO
A
QUARTOS
7
WC
7
ÁREA BRUTA
297.96
ÁREA ÚTIL
285
CERT. ENERGÉTICO
B-
QUARTOS
2
WC
2
ÁREA BRUTA
101.38
ÁREA ÚTIL
91.38
CERT. ENERGÉTICO
B
QUARTOS
3
WC
3
ÁREA BRUTA
150
ÁREA ÚTIL
130
CERT. ENERGÉTICO
A+
QUARTOS
1
WC
2
ÁREA BRUTA
67
ÁREA ÚTIL
65
CERT. ENERGÉTICO
A







