TYPOLOGY
LOCATION
2 bedroom house in Bragança
Property ID:
Description
House for renovation with approved project in the Cantarias – Fraga Selvagem area, in Bragança!
Included in a batch of 233 m²This house is located in a quiet, family-friendly area, offering excellent potential for appreciation.
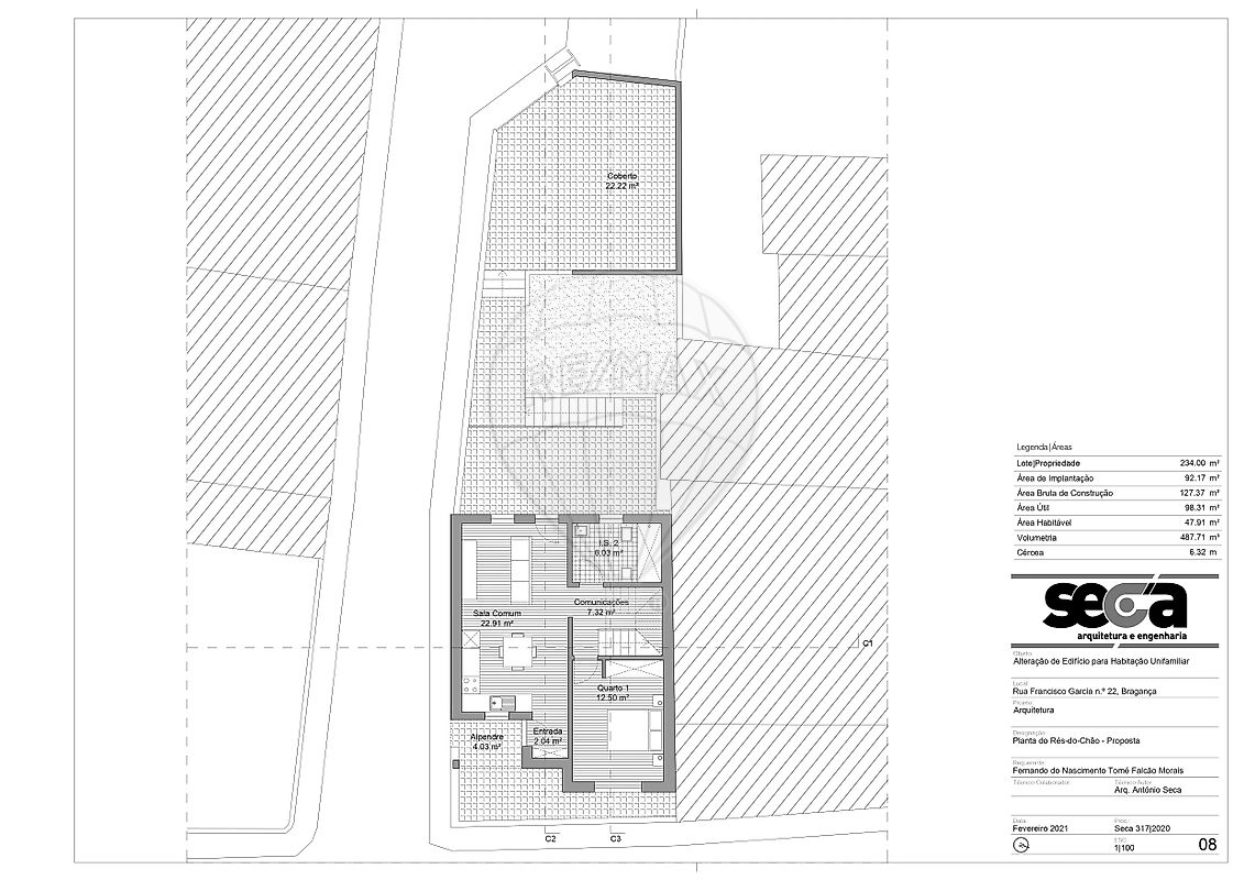
The property already has Project approved for two floors., with the following distribution:
Ground floor
- Open-plan living room and kitchen measuring 31 m²
- Room
- Full bathroom measuring 6 m²
- Porch measuring 4 m²
- Outdoor barbecue area
- Space designated for a pool/garden, to decorate and equip to your liking.
- Covered area of 22 m² for vehicle parking and storage.
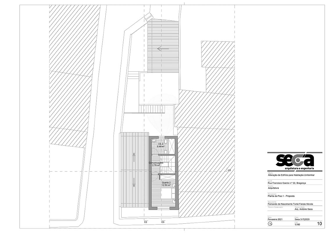
First floor
- Room
- Full bathroom measuring 6 m²
- Stairwell and circulation area between floors
The property also has two independent entrancesOne is the main entrance, and the other is at the rear, with direct access for vehicles.
With excellent sun exposure and a prime location, this property is a great opportunity for permanent residence. The design also includes a barbecue area in the garden, with direct access to the living room and kitchen, ideal for family gatherings.
It is located just a few meters from the industrial zone, hypermarkets, and only... 3 minutes from the highway.
Come and discover and bring your dream to life, personalizing this home to your taste and refinement!
Specifications
Year Built:
Number of Rooms:
Number of Bathrooms:
Gross Area:
80 m2
Useful Area:
71 m2
Lot Area:
233 m2
Location
I want to be contacted!
Views
Credit Simulator
10%The amounts shown are merely indicative, non-binding, and may vary depending on the actual credit conditions, subject to approval by the financial institution. Consultation with a Credit Intermediary is recommended for a personalized analysis.
Similar Properties
ROOMS
1
WC
2
GROSS AREA
125.93
USEFUL AREA
65.21
ENERGY CERTIFICATION
A+
ROOMS
2
WC
2
GROSS AREA
80
USEFUL AREA
71
ENERGY CERTIFICATION
NC
ROOMS
4
WC
2
GROSS AREA
65
USEFUL AREA
61
ENERGY CERTIFICATION
W
ROOMS
2
WC
1
GROSS AREA
120
USEFUL AREA
100
ENERGY CERTIFICATION
AND
ROOMS
3
WC
1
GROSS AREA
129
USEFUL AREA
118
ENERGY CERTIFICATION
AND
ROOMS
4
WC
3
GROSS AREA
140
USEFUL AREA
130
ENERGY CERTIFICATION
AND
ROOMS
7
WC
4
GROSS AREA
430.8
USEFUL AREA
330
ENERGY CERTIFICATION
F
ROOMS
5
WC
1
GROSS AREA
360
USEFUL AREA
300
ENERGY CERTIFICATION
F






















